Tuborg Nord

  • Bygherre

    Carlsberg Ejendomme A/S

  • Samarbejdspartnere

    Rambøll A/S, Svend Kirkegaard ApS

  • Beliggenhed

    Tuborg Boulevard, DK-2900 Hellerup

  • Størrelse

    12.000 m2

  • Status

    Realiseret i 2002

Tuborg Nord

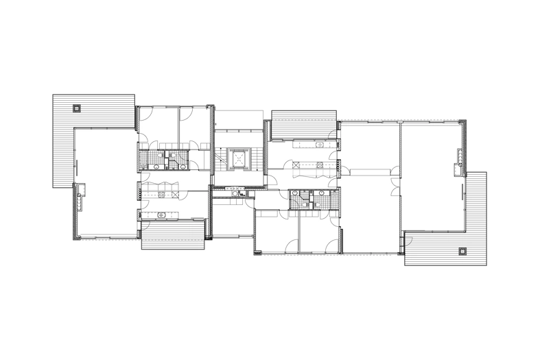
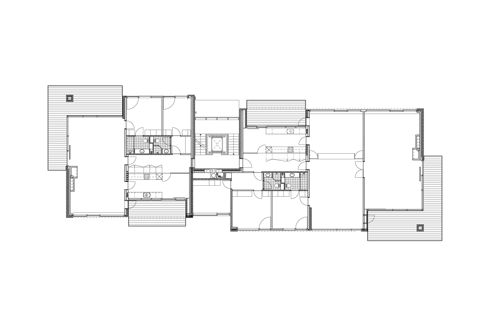
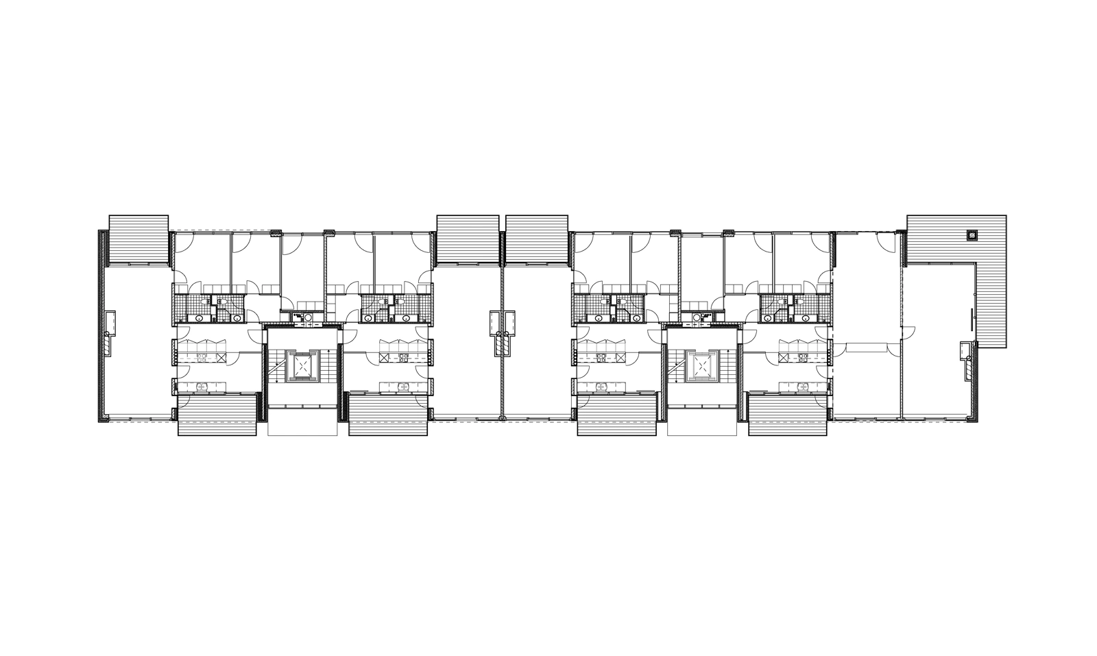
Tuborg Nords boliger står med filsede, koksgrå teglskiver i indfarvet puds som det primære element. De gennemlyste boliger lægger sig ind imellem teglskiverne i tydeligt aflæselige vinduessektioner, hvis kanter er lukket med mahogni. De lyse altaner med glasbalustrader og hvidmalede stålforkanter og lette opgangstårne er med til at underopdele bygningerne, sådan at de opleves varierede, når man passerer forbi langs kanalen. Alle 90 boliger har udsigt til Øresund og kanalen.

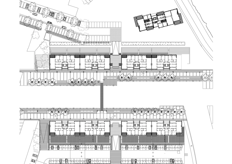
Området ligger smukt ud til Øresund med en kanal som det samlende element, der spejler de i alt fire længebygninger, som bebyggelsen består af.

Træbeplantningen langs kanalen og det landskabsanlæg, der blev etableret, da Tuborg Nord blev opført i 2002, er efterhånden vokset til og står integreret som en helhed sammen med de smukt patinerede længehuse. Kanalen ligger for enden af Tuborg Boulevard med en generøs spansk trappe ned til vandet.

Den overordnede helhedsplan for Tuborg Havn er et modernistisk udlæg, hvis overordnede motiv er at trække Øresund ind på land gennem et kanalsystem, og den anden vej at danne grobund for at bygninger og byrum på land får glæde af gode sigtelinjer og udsyn mod vandet.

Alle lejligheder er den samme type – flere steder spejlvendt – for netop at koncentrere indsatsen om at raffinere det arkitektoniske udtryk og de gode rumligheder til alle.

Allerede i opgangen fornemmer man den høje kvalitet i materialevalget. Murværket er trukket med ind i opgangen, og er malet i den samme koksgrå farve som udendørs. Trin og reposer er belagt med ubehandlet teaktræ. Inde i boligerne er gulvene i merbau – en mørk, slidstærk træsort, der står godt til bygningernes øvrige træsorter – mahogni og teak.

Lejlighederne fremstår gennemlyste og luftige med gode kig mod uderummene.

Der er parkering og depotrum i en høj kælder, der gør, at stuelejlighederne er generøst hævet over terræn, sådan at man der ikke oplever indkik fra promenaden langs kanalen.

 

Flere projekter
Skovskolen
Skademosen Trekroner
Regimentsparken