Toftehaven Plejehjem

  • Bygherre

    Ballerup Kommune og Boligselskabet Baldersbo

  • Samarbejdspartnere

    Teytaud A/S, Henrik Jørgensen Landskab A/S, Skanska Danmark A/S, C. C. Brun A/S

  • Beliggenhed

    Nygårdsvej 35, DK-2750 Ballerup

  • Størrelse

    4.500 m2

  • Status

    Realiseret i 2004

  • Award

    Ballerup Kommunes Bygningspræmiering (2005)

Tofthaven Plejehjem

Plejecenteret Toftehaven er placeret i det centrale Ballerup i en markant bymæssig kontekst. Designet er således funderet på en arkitektonisk dialog med den eksisterende bebyggelse i skala og materialitet.

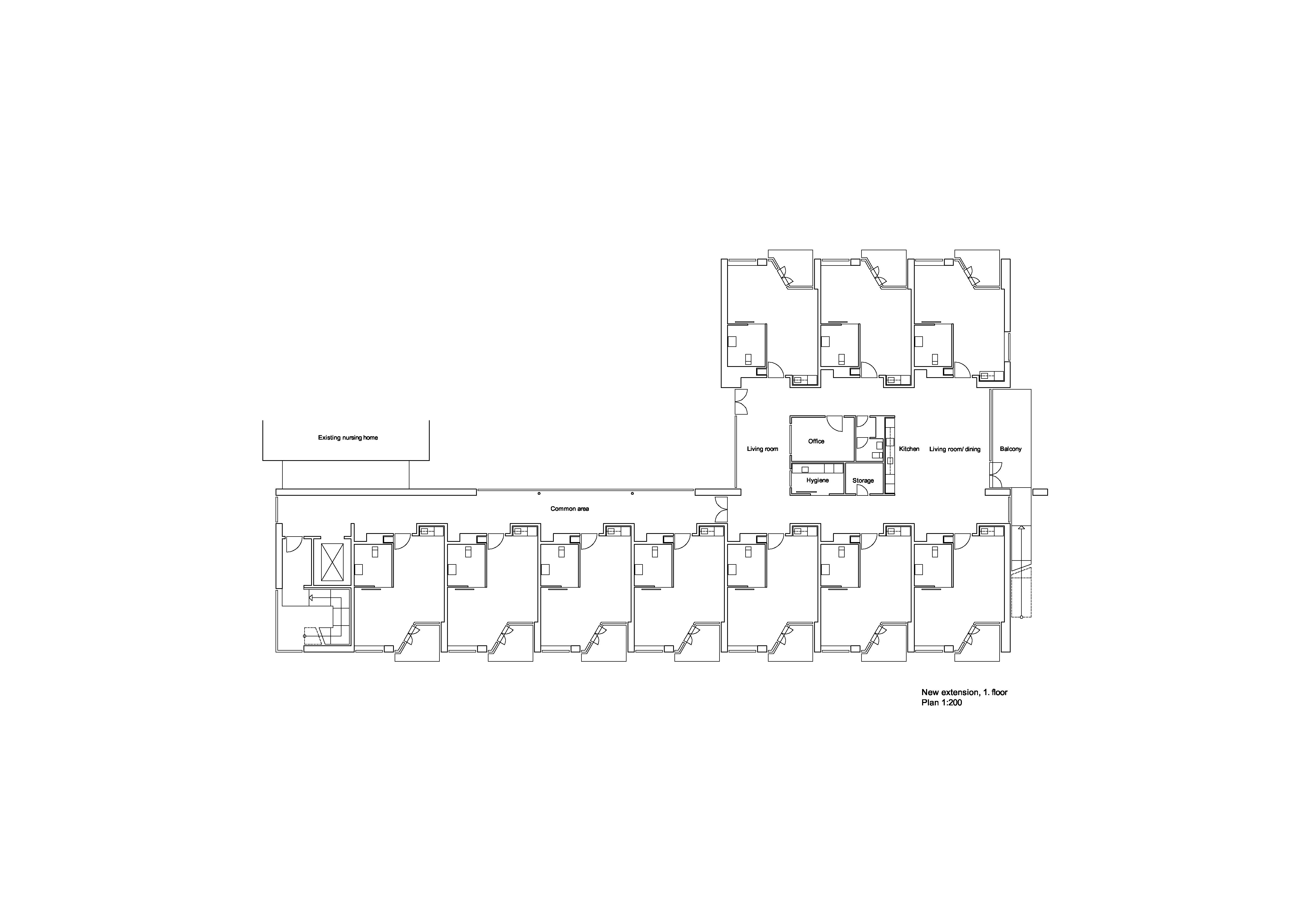
Projektet omhandler udvidelse og ombygning af det eksisterende plejehjem Toftehaven. Ombygning af de eksisterende boliger er udført uden væsentlige indgreb i den oprindelige bygnings konstruktion.

Byrum og boliger

De nye plejeboliger er etableret som en to etagers enkel og stram boliglænge langs Nygaardsvej.

Placeringen af nybyggeriet samt plandisponeringen sikrer optimale dagslys- og udsigtsforhold for de nye boliger, uden at forringe forholdene for det eksisterende byggeri. Endvidere er der god visuel kontakt til de omkringliggende huse og veje, således at beboerne ikke føler sig isoleret, men derimod bliver en aktiv del af lokalområdet.

Beboernes fællesarealer ligger i direkte forlængelse af boligerne, så fællesskabet let kan til- eller fravælges. Også fra fællesarealerne er der fine og indholdsrige kig til nærområdet.

Den nye forplads mod Nygårdsvej giver en landskabelig kobling af de to etaper og skaber en præcis, afklaret adgang til plejecenteret. Forpladsen fremstår som lokalområdets byplads og henvender sig således til såvel beboere som byboere generelt.

Bygningerne fremstår med markante facadefremspring og tilbagetrækninger, der nedskalerer bygningsvoluminerne og samtidig sikrer den enkelte beboer stor privathed.

Boligerne er designet ud fra ønsket om at skabe størst mulig hjemlighed – boliger der i materialitet og udformning minder mest muligt om det hjem, man har fraflyttet.

Alle boliger er forsynet med store møblerbare altaner, der er trukket tilbage i forhold til facaden for at skabe læ og privathed. Altanerne fungerer således som supplerende rum til den lille bolig i sommerhalvåret. For de meget sengeliggende beboere er der endvidere fine kig til altanen og lokalområdet gennem store vinduespartier, der ophæver grænsen mellem ude og inde.

Materialitet

Samspillet mellem områdets eksisterende bebyggelse og de nye bygninger har været højt prioriteret i forhold til materialitet. Bygningerne fremstår arkitektonisk selvstændigt og markant, men de gule hårdtbrændte teglsten fortæller historien om sammenkoblingen med det eksisterende plejecenter og lokalområdet generelt.

Alle vinduespartier er udført i mahogni, der skaber en venlig og varm overflade – såvel ude som inde.

Præmiering

I 2005 modtog Plejecenter Toftehaven Ballerup Kommunes bygningspris for forskønnelse af lokalområdet og etablering af ældreboliger med stor respekt for den enkelte beboer – den værdige sidste bolig.

Flere projekter
Skovskolen
Skademosen Trekroner
Regimentsparken