Marble City

  • Client

    By & Havn, Nordkranen, PenSam Liv

  • Team

    1:1 landskab, NCC Construction

  • Location

    Marmorvej 37, DK-2100 Copenhagen Ø

  • Size

    33,000 m²

  • Status

    Completed in 2016

Housing in a green setting in the middle of the harbour

The Marbel City is located on Marbel Pier in Copenhagen Harbour. The properties are located on two islands surrounded by canals and harbour areas. They form a spatial hierarchy expressed in wings with towers.

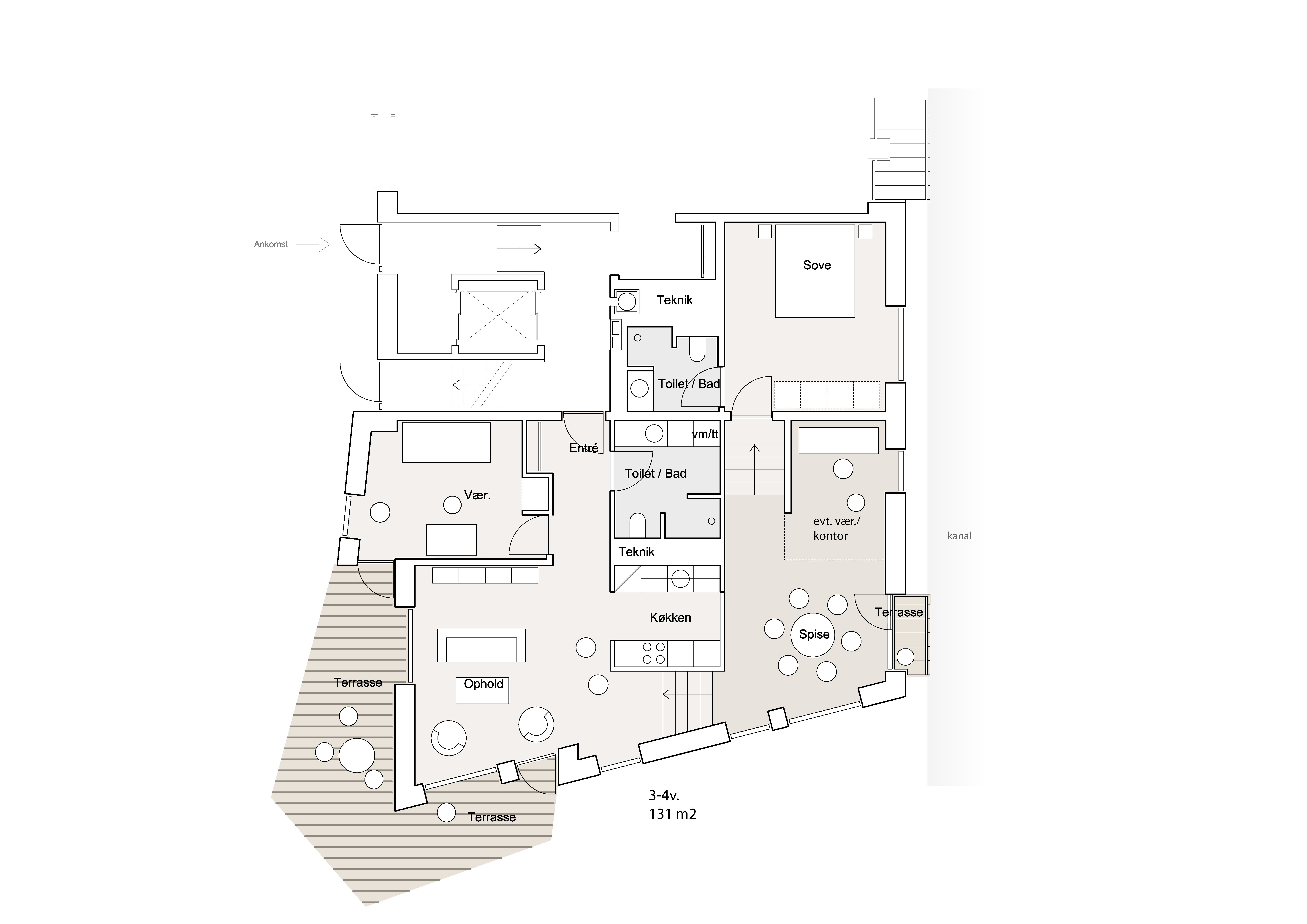
The complex is laid out in relation to central urban spaces, daylight, and views of the harbour environment. The 259 homes are positioned so that they all benefit from the views of the harbour area and the canals. Attractive brick and timber surfaces form the framework for the development while creating gentle transitions between the terraces and the quay. There is a hierarchy of private, semi-private and communal leisure zones.

Large balconies make it possible to spend time outdoors throughout the year. The homes on the ground floor are split-levelled, giving residents increased room height and close contact with the water.

Some housing wings have small shops on the ground floor while others have shared facilities, where residents can meet up for communal events.

In addition to the housing, there are approximately 600 parking spaces beneath the residential island, used by the staff working in UN City (the nearest neighbor) and the residents and workers of The Marble Pier.

Materiality - brick not marble

An important part of the overall design of the development is the interaction between the existing buildings in the area and the future ones. The simple façades seek to perpetuate the architectural tradition in a contemporary idiom. The buildings are built with a dark brick façade that indicates a clear affinity with the old warehouses. Shade-wise, the brick façades are varied and small protrusions were added to provide human scale.

The urban landscape

The landscaping of the islands, on which the homes are located, was inspired by the type of nature featuring small dunes and tough species of plants, which is familiar in the coastal areas of Zealand.

There are open, continuous footpaths and quay areas for the benefit of residents and other Copenhageners. The open areas were designed with the highest possible degree of planting and a minimum of paved areas.

Sustainability and energy

The Marble Pier was constructed in accordance with 2015 energy requirements, and a top priority were energy consumption and good indoor climate. The buildings feature healthy materials with an emphasis on being able to withstand daily wear and tear, and not emitting vapours or trace elements.

Other projects
Forest College Student Housing
Skademosen Housing
The Regiment Park