
Copenhagen Business School
The Ministry of Higher Education and Science’s Building Directorate, Carl Bro A/S, Erik Reitzel, Stig L. Anderson
Solbjerg Plads 3, DK-2000 Frederiksberg
38,500 m2
Completed in 2001
Frederiksberg Municpality’s Architecture Award 1999 - 2001
First Prize
Uddannelse
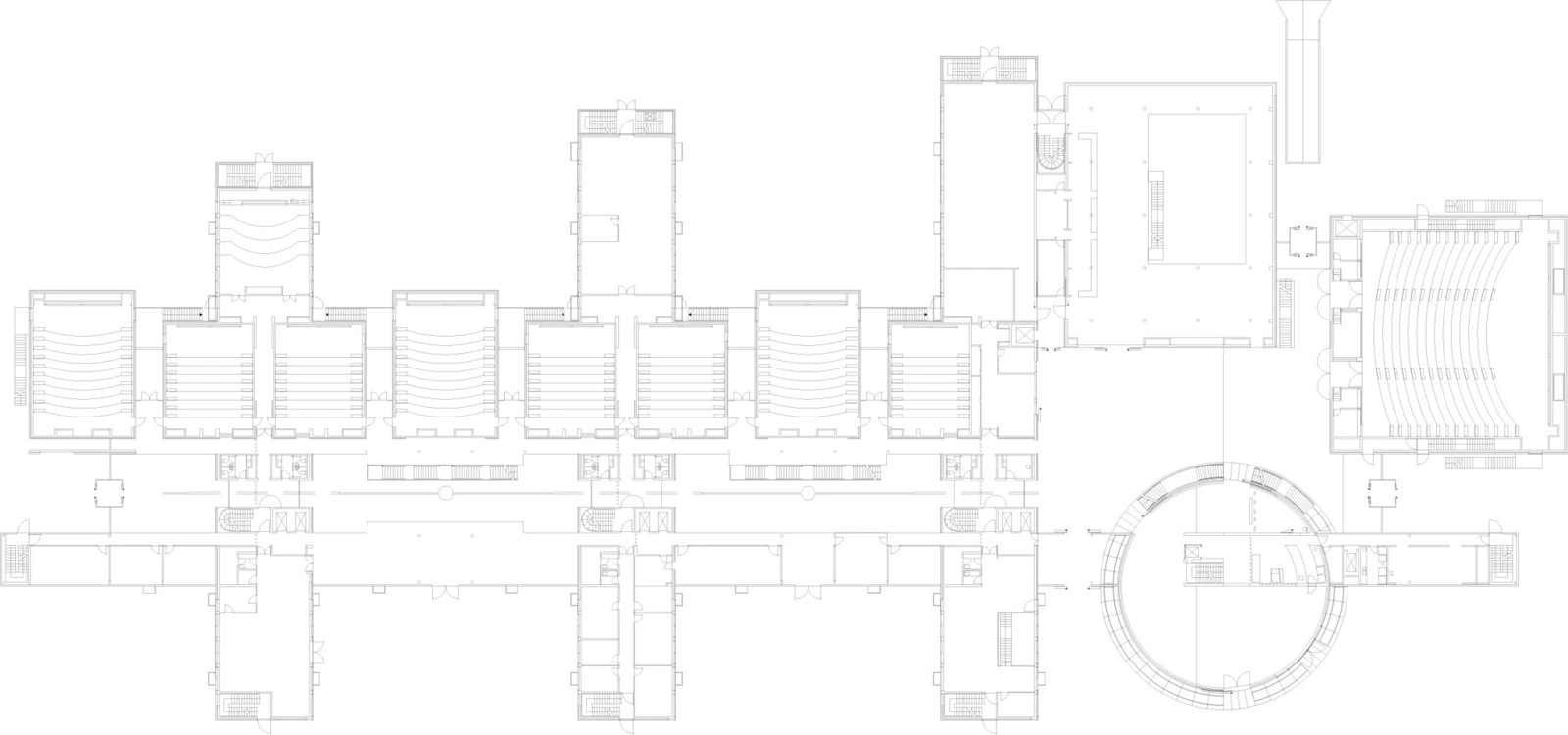
The Copenhagen Business School or the ‘Wedge’ has, since its construction, become the fulcrum of education and culture in Frederiksberg. The Copenhagen Business School stands out as one of the most prominent buildings on Solbjerg Square.
The building’s inner arcade forms a backbone with a series of auditoriums, a library, CBS’s joint administration, and common facilities. A big part of CBS on Solbjerg Square contains private programs, where the auditoriums are the most significant ones. In spite of that, the building presents itself as open and inviting – facing the busy pedestrian street at Frederiksberg Library and Frederiksberg Metro Station.
CBS is designed with earth tones in good-quality, robust materials. Transversal wing buildings are clad with screen bricks; built up around a visible steel frame, thus creating a robust ridge frame. This scales down the exterior spaces in front of the building. Stig L. Andersen has designed the pocket parks alongside the southern facade with funding from a series of foundations.